Page 113 - D'Man Civil 1st Year TP - Kannada
P. 113
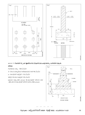
Fig 7 Fig 8
ಕಾಯಸ್ 9: ಗೀಡೆಗೆ ಸ್್ಪ ರಾ ಡ್ ಫೂಟಿಂಗ್ ನ ವಿಭಾಗೀಯ ಎತತಿ ರವನ್ನು ಬರೆಯಿರ (Fig 9)
ಡೇಟಾ:
ಗೋಡೆಯ ದಪ್ಪ - 300 ಮಮೋ
D- ನೆಲದ ಮಟ್್ಟ ದಿೊಂದ ಅಡಿಪ್ಯದ ಆಳ-90 ಮಮೋ
a - ಕಾೊಂಕಿ್ರ ೋಟ್ ಆಫ್್ಸ ಟ್ -150 ಮಮೋ
ಇಟ್್ಟ ಗೆ ಕೆಲಸ್ದ ಆಫ್್ಸ ಟ್- 50 ಮಮೋ
ಪ್ದದ ದಪ್ಪ -200 ಎೊಂಎೊಂ ಡಿ-ಕಾೊಂಕಿ್ರ ೋಟ್ ಬೇರ್ ನ ಆಳ
-300 ಮೋ ಬ್-ಕಾೊಂಕಿ್ರ ೋಟ್ ಬೇರ್ ನ ಅಗಲ-900 ಎೊಂಎೊಂ
నిర్మాణ ం - రాఫ్స్ మన్ సివిల్ (NSQF - రివైజ్ డ్ 2022) - వ్యా యామ 1.4.25 93
ట్

