Page 111 - D'Man Civil 1st Year TP - Kannada
P. 111
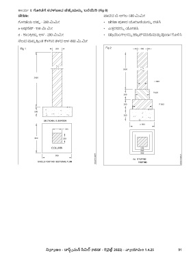
ಕಾಯಸ್ 8: ಗೀಡೆಗೆ ಸರಳವಾದ ಹೆಜ್ಜೆ ಯನ್ನು ಬರೆಯಿರ (Fig 8)
ಡೇಟಾ: ಪ್ದದ ಬ್-ಅಗಲ-500 ಮಮೋ
ಗೋಡೆಯ ದಪ್ಪ - 200 ಮಮೋ • ಡೇಟಾ ಪ್ರ ಕಾರ ಯೋಜನೆಯನ್್ನ ರಚಿಸಿ
a-ಆಫಸೆಟ್ -150 ಮ ಮೋ • ಎತ್್ತ ರವನ್್ನ ಯೋಜಿಸಿ
d - ಕಾೊಂಕಿ್ರ ೋಟ್್ನ ಆಳ - 200 ಮಮೋ • ಡ್್ರ ಯಿೊಂಗ್ ಅನ್್ನ ಹಾ್ಯ ಚ್ ಮಾಡಿ ಮತ್್ತ ಪೂರ್ಸ್ಗಳಿಸಿ
ನೆಲದ ಮಟ್್ಟ ಕಿಕೆ ೊಂತ್ ಕೆಳಗಿನ ತ್ಳದ ಆಳ-800 ಮ.ಮೋ
Fig 2
నిర్మాణ ం - రాఫ్స్ మన్ సివిల్ (NSQF - రివైజ్ డ్ 2022) - వ్యా యామ 1.4.25 91
ట్

