Page 117 - D'Man Civil 1st Year TP - Kannada
P. 117
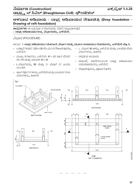
ನಿರ್ಮಾಣ (Construction) ಎಕ್್ಸ ಸೈಜ್ 1.4.28
ಡ್ರಾ ಫ್್ಟ್ ್ಸ್ಮ ನ್ ಸಿವಿಲ್ (Draughtsman Civil) -ಫೌಂಡೇಶನ್
ಆಳವಾದ ಅಡಿಪ್ಯ - ರಾಫ್್ಟ್ ಅಡಿಪ್ಯದ ರೇಖಾಚಿತರಾ (Deep foundation -
Drawing of raft foundation)
ಉದ್್ದ ೀಶಗಳು: ಈ ಎಕ್್ಸ ಸೈಜ್ ನ ಕೊನೆಯಲ್ಲಿ ನಿಮಗೆ ಸಾಧ್್ಯ ವಾಗುತ್್ತ ದೆ.
• ರಾಫ್್ಟ್ ಅಡಿಪ್ಯದ ಅಡಡ್ ವಿಭಾಗವನ್ನು ಎಳೆಯಿರ.
ವಿಧಾನ (PROCEDURE)
ಕಾಯಸ್ 1: ರಾಫ್್ಟ್ ಅಡಿಪ್ಯದ ಯೀಜನೆ, ವಿಭಾಗ ಮತ್ತಿ ಮೂರು ಆಯಾಮದ ನ್ೀಟ್ವನ್ನು ಎಳೆಯಿರ (Fig 1)
• ಒಟಾ್ಟ ರೆ ಗಾತ್್ರ ದ 1200 x 600 ಸೆೊಂ.ಮೋ.ನ ರೇಖಾಚಿತ್್ರ ವನ್್ನ • L- ವಿಭಾಗ BB ಅನ್್ನ ಎಳೆಯಿರಿ ಮತ್್ತ ಬಲವಧ್ಸ್ನೆಯ
ಎಳೆಯಿರಿ ವಿವರಗಳನ್್ನ ತೋರಿಸಿ
• ಮುಖ್್ಯ ಕಿರರ್ವನ್್ನ ಎಳೆಯಿರಿ, 40 x 60 ಕಾ್ರ ರ್ ಬ್ೋಮ್ • ಆಕೃತಿಯ ಆಯಾಮ
40 x 50 ಮತ್್ತ ಕಾಲಮ್ 40 x 40 • ಚಿತ್್ರ ದಲ್ಲಿ ತೋರಿಸಿರುವಂತೆ ರಾಫ್್ಟ ಅಡಿಪ್ಯದ
• L-ವಿಭಾಗವನ್್ನ BB ಮತ್್ತ Cr ವಿಭಾಗ CC ಎೊಂದು ಸ್ಮಮಾಪನವನ್್ನ ಎಳೆಯಿರಿ
ಗುರುತಿಸಿ • ರೇಖಾಚಿತ್್ರ ವನ್್ನ ಪೂರ್ಸ್ಗಳಿಸಿ
• ಕಾ್ರ ರ್ ಸೆಕ್ಷನ್ CC ಅನ್್ನ ಎಳೆಯಿರಿ ಮತ್್ತ ಬಲವಧ್ಸ್ನೆಯ
ವಿವರಗಳನ್್ನ ತೋರಿಸಿ
97

