Basic HTML Version
Table of Contents
View Full Version
Page 244 - D'Man Civil 1st Year TP - Kannada
P. 244
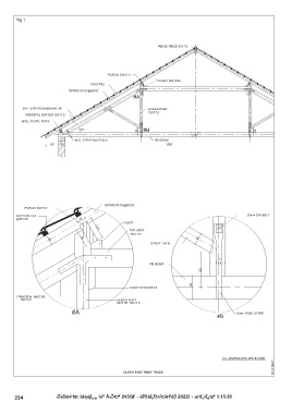
224 ನಿರ್ಮಾಣ: ಡ್ರಾ ಫ್್ಟ್ ್ಸ್ಮ ನ್ ಸಿವಿಲ್ (NSQF - ಪರಿಷ್್ಕ ರಿಸಲಾಗದ್ 2022) - ಎಕ್್ಸ ಸೈಜ್ 1.15.65
239
240
241
242
243
244
245
246
247
248
249