Page 242 - D'Man Civil 1st Year TP - Kannada
P. 242
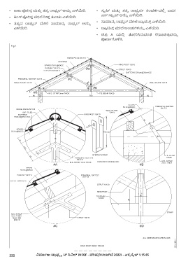
• ರಾಜ ಪ್ೀಸ್್ಟ ಮತ್್ತ ತ್ತ್್ವ ರಾಫ್್ಟ ರ್ ಅನ್್ನ ಎಳೆಯಿರಿ. • ಸ್್ಟ ್ರ್ಟ್ ಮತ್್ತ ತ್ತ್್ವ ರಾಫ್್ಟ ನ್ನ ಸಂಪ್ಕ್್ನದಲ್ಲಿ ಎಮ್.
• ಕಿಾಂಗ್ ಪ್ೀಸ್್ಟ ಮೇಲೆ ರಿರ್ಜ್ ತ್ಾಂಡು ಎಳೆಯಿರಿ. ಎಸ್ ಸಾ್ಟ ್ರ್ಪ್ ಅನ್್ನ ಎಳೆಯಿರಿ.
• ತ್ತ್್ವ ದ ರಾಫ್್ಟ ರ್ ಮೇಲೆ ಸಾಮಾನ್ಯ ರಾಫ್್ಟ ರ್ ಅನ್್ನ • ಸಾಮಾನ್ಯ ರಾಫ್್ಟ ರ್ ಮೇಲೆ ಬ್್ಯ ಟ್ನ್್ಸ ಎಳೆಯಿರಿ.
ಎಳೆಯಿರಿ. • ಬ್್ಯ ಟ್ನ್್ಸ ಮೇಲೆ ಅಾಂಚುಗಳನ್್ನ ಎಳೆಯಿರಿ.
• ಚಿತ್್ರ A ಯಲ್ಲಿ ತೀರಿಸಿರುವಂತೆ ರೇಖಾಚಿತ್್ರ ವನ್್ನ
ಪೂರ್್ನಗಳಿಸಿ.
222 ನಿರ್ಮಾಣ: ಡ್ರಾ ಫ್್ಟ್ ್ಸ್ಮ ನ್ ಸಿವಿಲ್ (NSQF - ಪರಿಷ್್ಕ ರಿಸಲಾಗದ್ 2022) - ಎಕ್್ಸ ಸೈಜ್ 1.15.65

