Page 230 - D'Man Civil 1st Year TP - Kannada
P. 230
ಚಲಿಸುವ ಮೆಟ್್ಟ್ ಲುಗಳು (ಎಸ್ಕ ಲೇಟರ್ ಗಳು) (Moving stairs (escalators)
ಉದ್್ದ ದೇಶ: ಈ ಎಕ್್ಸ ಸೈಜ್ ನ ಕೊನೆಯಲ್ಲಿ , ನಿಮಗೆ ಸಾಧ್್ಯ ವಾಗುತ್್ತ ದೆ.
• ಚಲಿಸುವ ಮೆಟ್್ಟ್ ಲುಗಳ ಯದೇಜನೆ ಮತ್ತು ವಿಭಾಗವನ್ನು ಎಳೆಯಿರಿ (ಎಸ್ಕ ಲೇಟಗಮಾಳು).
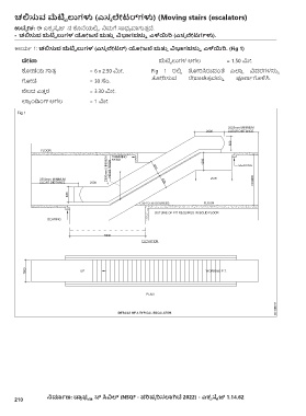
ಕಾಯ್ಯ 1: ಚಲಿಸುವ ಮೆಟ್ಟಿ ಲುಗಳ (ಎಸ್್ಕ ಲೇಟರ್) ಯೋಜನೆ ಮತ್ತು ವಿಭಾಗವನ್ನು ಎಳೆಯಿರಿ. (Fig 1)
ಡೇಟಾ ಮೆಟಿಟಿ ಲುಗಳ ಅಗಲ = 1.50 ಮಿೋ.
ಕೊೋಣೆಯ ಗಾತ್್ರ = 6 x 2.50 ಮಿೋ. Fig 1 ರಲ್ಲಿ ತೋರಿಸ್ರುವಂತೆ ಎಲಾಲಿ ವಿವರಗಳನ್ನು
ಗೋಡೆ = 30 ಸೆಾಂ. ತೋರಿಸುವ ರೇಖಾಚಿತ್್ರ ವನ್ನು ಪೂಣ್್ಯಗಳಿಸ್.
ನೆಲದ ಎತ್್ತ ರ = 3.30 ಮಿೋ.
ಲಾ್ಯ ಾಂಡ್ಾಂಗ್ ಅಗಲ = 1 ಮಿೋ.
210 ನಿರ್ಮಾಣ: ಡ್ರಾ ಫ್್ಟ್ ್ಸ್ಮ ನ್ ಸಿವಿಲ್ (NSQF - ಪರಿಷ್್ಕ ರಿಸಲಾಗಿದ್ 2022) - ಎಕ್್ಸ ಸೈಜ್ 1.14.62

