Page 227 - D'Man Civil 1st Year TP - Kannada
P. 227
ಯದೇಜನೆ ವಿಭಾಗ ಎತತು ರ
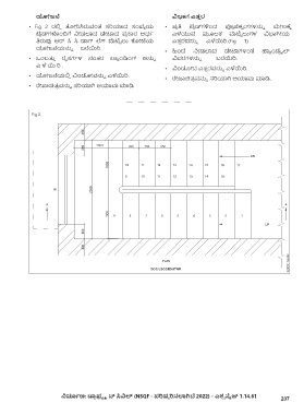
• Fig 2 ರಲ್ಲಿ ತೋರಿಸ್ರುವಂತೆ ಸರಿಯಾದ ಸಂಖೆ್ಯ ಯ • ಪ್್ರ ತಿ ಟೆ್ರ ರ್ ಗಳಿಾಂದ ಪ್ರ ರ್ಕ್ಟಿ ರ್ ಗಳನ್ನು ಮೇಲಕೆಕೆ
ಟೆ್ರ ರ್ ಗಳೊಾಂದಿಗೆ ನಿೋಡಲಾದ ಡೇಟಾದ ಪ್್ರ ಕಾರ ಅಧ್್ಯ ಎಳೆಯುವ ಮೂಲಕ್ ಮೆಟಿಟಿ ಲುಗಳ ವಿಭಾಗಿೋಯ
ತಿರುವು ಆರ್ ಸ್ ಸ್ ಡ್ಗ್ ಲ್ಗ್ ಮೆಟಿಟಿ ಲು ಕೊೋಣೆಯ ಎತ್್ತ ರವನ್ನು ಎಳೆಯಿರಿ.(Fig 1)
ಯೊೋಜನೆಯನ್ನು ಬರೆಯಿರಿ. • ಹಿಾಂದೆ ನಿೋಡಲಾದ ಡೇಟಾಗಳಂತೆ ಹಾ್ಯ ಾಂಡೆ್ರ ರೈಲ್
• ಒಾಂಬತ್್ತ ರೈಸಗ್ಯಳ ನಂತ್ರ ಲಾ್ಯ ಾಂಡ್ಾಂಗ್ ಅನ್ನು ವಿವರಗಳನ್ನು ಬರೆಯಿರಿ.
ಎಳೆಯಿ ರಿ. • ವಿಾಂಡೋದ ಎತ್್ತ ರವನ್ನು ಎಳೆಯಿರಿ.
• ಯೊೋಜನೆಯಲ್ಲಿ ವಿಾಂಡೋವನ್ನು ಎಳೆಯಿರಿ. • ರೇಖಾಚಿತ್್ರ ವನ್ನು ಸರಿಯಾಗಿ ಆಯಾಮ ಮಾಡ್.
• ರೇಖಾಚಿತ್್ರ ವನ್ನು ಸರಿಯಾಗಿ ಆಯಾಮ ಮಾಡ್
ನಿರ್ಮಾಣ: ಡ್ರಾ ಫ್್ಟ್ ್ಸ್ಮ ನ್ ಸಿವಿಲ್ (NSQF - ಪರಿಷ್್ಕ ರಿಸಲಾಗಿದ್ 2022) - ಎಕ್್ಸ ಸೈಜ್ 1.14.61 207

