Page 208 - D'Man Civil 1st Year TP - Kannada
P. 208
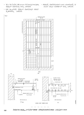
• 50 x 150 ಮಿಮಿೋ, 380 ಎಾಂಎಾಂ ಸ್/ಸ್ ಉದ್ದ ದ ಉದ್ದ ಕ್ಕೆ • ಚಿತ್್ರ ದಲ್ಲಿ ತೋರಿಸ್ರುವಂತೆ ಒಾಂದು ಮೂಲ್ಯಲ್ಲಿ 32
ಬ್್ರ ಡ್್ಜಿ ಾಂಗ್ ಜೋಯಿಸ್ಟಿ ಅನ್ನು ಎಳೆಯಿರಿ. ಮಿಮಿೋ ದಪ್್ಪ ದ ಬೋಡ್್ಯಾಂಗ್ ಅನ್ನು ಎಳೆಯಿರಿ.
• ಪ್್ರ ತಿ ಸಾ್ಪ ್ಯ ನ್ ನಲ್ಲಿ ಬ್್ರ ಡ್್ಜಿ ಾಂಗ್ ಜೋಯಿಸ್ಟಿ ನ ನಡುವೆ
ಸಟಿ ರಾಟ್ ಗಳನ್ನು ಎಳೆಯಿರಿ.
188 ನಿರ್ಮಾಣ: ಡ್ರಾ ಫ್್ಟ್ ್ಸ್ಮ ನ್ ಸಿವಿಲ್ (NSQF - ಪರಿಷ್್ಕ ರಿಸಲಾಗಿದ್ 2022) - ಎಕ್್ಸ ಸೈಜ್ 1.13.59

