Page 205 - D'Man Civil 1st Year TP - Kannada
P. 205
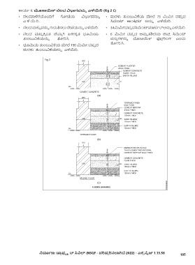
ಕಾಯ್ಯ 6: ಮೊಸಾಯಿಕ್ ನೆಲದ ವಿಭಾಗವನ್ನು ಎಳೆಯಿರಿ (Fig 2 C)
• ನೆಲಮಾಳಿಗೆಯೊಾಂದಿಗೆ ಗೋಡೆಯ ವಿಭಾಗವನ್ನು • ಮರಳು ತ್ಾಂಬುವಿಕೆಯ ಮೇಲ್ 75 ಮಿಮಿೋ ದಪ್್ಪ ದ
ಎಳೆಯಿರಿ . ಸ್ಮೆಾಂಟ್ ಕಾಾಂಕ್್ರ ೋಟ್ ಅನ್ನು ಎಳೆಯಿರಿ.
• ನೆಲದ ಮಟಟಿ ವನ್ನು ಗುರುತಿಸಲು ರೇಖೆಯನ್ನು ಎಳೆಯಿರಿ. • 34 ಮಿಮಿೋ ದಪ್್ಪ ದ ಸ್ಮೆಾಂಟ್ ಮಾಟ್ಯರ್ ಅನ್ನು ಎಳೆಯಿರಿ.
• ನೆಲದ ಮಟಟಿ ಕ್ಕೆ ಾಂತ್ ಚೆನ್ನು ಗಿ ಏಕ್ೋಕೃತ್ ಭೂಮಿಯ • 6 ಮಿಮಿೋ ದಪ್್ಪ ದ ಅಮೃತ್ಶಿಲ್ಯ ಚಿಪ್್ಸ ಸ್ಮೆಾಂಟ್
ತ್ಾಂಬುವಿಕೆಯನ್ನು ತೋರಿಸ್. ವಸು್ತ ಗಳನ್ನು ಮೊಸಾಯಿಕ್ ಫ್ಲಿ ೋರಿಾಂಗ್ ಎಾಂದು
• ಭೂಮಿಯ ತ್ಾಂಬುವಿಕೆಯ ಮೇಲ್ 150 ಮಿಮಿೋ ದಪ್್ಪ ದ ತೋರಿ ಸ್ .
ಮರಳು ತ್ಾಂಬುವಿಕೆಯನ್ನು ಎಳೆಯಿರಿ.
ನಿರ್ಮಾಣ: ಡ್ರಾ ಫ್್ಟ್ ್ಸ್ಮ ನ್ ಸಿವಿಲ್ (NSQF - ಪರಿಷ್್ಕ ರಿಸಲಾಗಿದ್ 2022) - ಎಕ್್ಸ ಸೈಜ್ 1.13.58 185

