Basic HTML Version
Table of Contents
View Full Version
Page 214 - D'Man Civil 1st Year TP - Kannada
P. 214
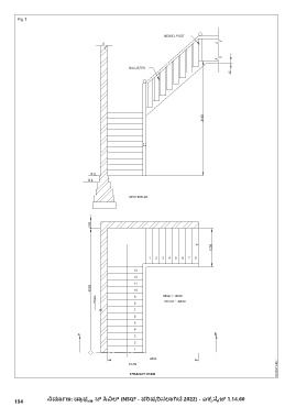
194 ನಿರ್ಮಾಣ: ಡ್ರಾ ಫ್್ಟ್ ್ಸ್ಮ ನ್ ಸಿವಿಲ್ (NSQF - ಪರಿಷ್್ಕ ರಿಸಲಾಗಿದ್ 2022) - ಎಕ್್ಸ ಸೈಜ್ 1.14.60
209
210
211
212
213
214
215
216
217
218
219