Page 148 - D'Man Civil 1st Year TP - Kannada
P. 148
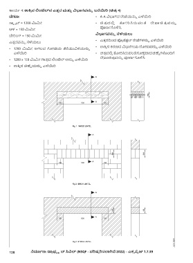
ಕಾಯ್ಯ 4: ಉಕ್್ಕ ನ ಲಿಿಂಟೆಲ್ ನ ಎತ್ತು ರ ಮತ್ತು ವಿಭಾಗವನುನು ಬರೆಯಿರಿ (ಚಿತ್ರಾ 4)
ಡೇಟ್: • A-A ವಿಭಾಗದ ರೇಖೆಯನ್್ನ ಎಳೆಯಿರಿ
ಸಾಪ್ ್ಯ ನ್ = 1200 ಮಿಮಿದೇ • ಚಿತ್ರಿ ದಲ್ಲಿ ತ ದೇ ರಿಸಿರು ವಂತೆ ರೇಖಾ ಚಿತ್ರಿ ವನ್್ನ
ಆಳ = 150 ಮಿಮಿದೇ ಪೂರ್್ಯಗಳಿಸಿ.
ಬೇರಿಿಂಗ್ = 150 ಮಿಮಿದೇ ವಿಭಾಗವನುನು ಸೆಳೆಯಲು
ಎತ್್ತ ರವನ್್ನ ಸ್ಳೆಯಲು • ಎತ್್ತ ರದಿಿಂದ ಪ್ರಿ ಜೆಕ್ಷನ್ ರೇಖೆಗಳನ್್ನ ಎಳೆಯಿರಿ
• 1200 ಮಿಮಿದೇ ಅಗಲದ ಗದೇಡೆಯ ತೆರೆಯುವಿಕೆಯನ್್ನ • ಉಕ್್ಕ ನ ಕ್ರರ್ದ ವಿಭಾಗಿದೇಯ ನ್ದೇಟವನ್್ನ ಎಳೆಯಿರಿ
ಎಳೆಯಿರಿ • ಚಿತ್ರಿ ದಲ್ಲಿ ತದೇರಿಸಿರುವಂತೆ ಸೂಕ್್ತ ವಾದ ಚಿಹ್್ನ ಗಳೊಿಂದಿಗೆ
• 1200 x 150 ಮಿಮಿದೇ ಗಾತ್ರಿ ದ ಲ್ಿಂಟೆಲ್ ಅನ್್ನ ಎಳೆಯಿರಿ ರೇಖಾಚಿತ್ರಿ ವನ್್ನ ಪೂರ್್ಯಗಳಿಸಿ
• ಉಕ್್ಕ ನ ಚಿಹ್್ನ ಯನ್್ನ ಎಳೆಯಿರಿ
128 ನಿರ್ಮಾಣ: ಡ್ರಾ ಫ್್ಟ್ ್ಸ್ಮ ನ್ ಸಿವಿಲ್ (NSQF - ಪರಿಷ್್ಕ ರಿಸಲಾಗಿದೆ 2022) - ಎಕ್್ಸ ಸೈಜ್ 1.7.39

